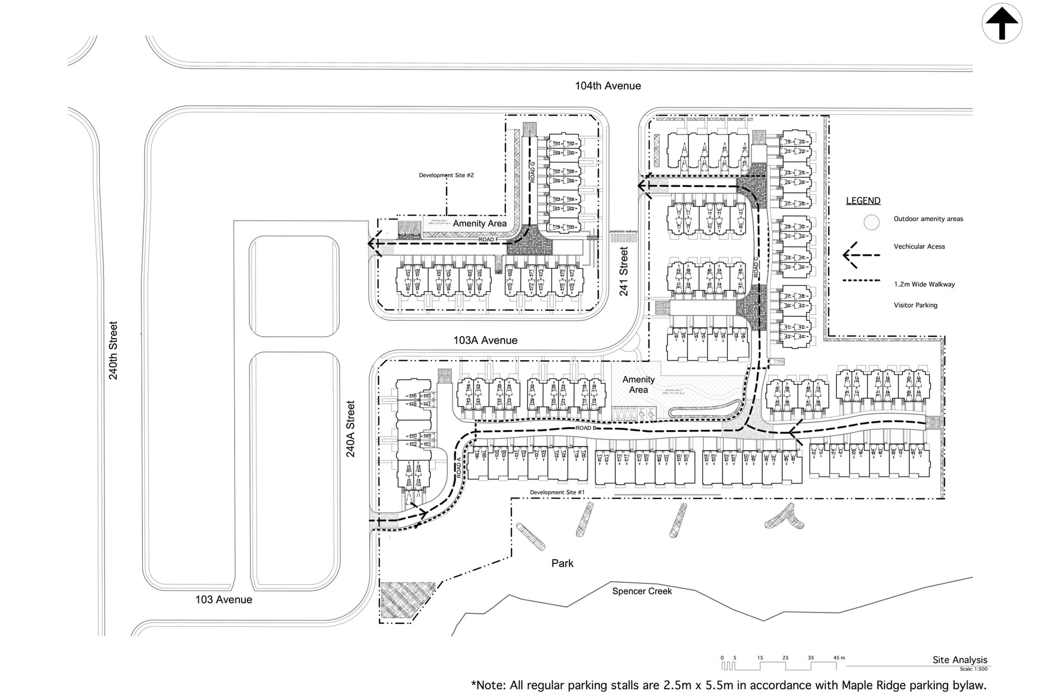
104th Townhouses Townhouse Development
Architectural Firm
							
						Project Architect
															: Wayne Bissky
													Site Area
							: 25,884.3 m2 278,616 SF
						Density
							: 37 Units / Hectare 15 Units / Acre
						No. Residential Units
							: 96
						Gross Residential Area
							: 14,003.2 m2 150,729 SF
						Scope of Work
While employed at Bissky Architecture, John worked directly under the supervision of the architect Wayne Bissky to prepare the drawings for Development Permit (DP) and rezoning (RZ) applications.
John had various responsibilities throughout the project. During the development process, he was tasked with creating the floor plans, sections, elevations, & renderings from the Architects sketches for submission into the city. The digital model was drawn in Vectorworks.